///// НАЗНАЧЕНИЕ КАМЕР И ОБЩИЕ РЕКОМЕНДАЦИИ
С целью сократить издержки и трудозатраты на разработку условий содержания каждого вновь обнаруженного аномального субъекта, обладающих строением, физиологией и основными потребностями, близкими к таковым для обычных представителей Homo sapiens, организацией разработаны стандартные условия содержания и стандартные камеры, которые обеспечивают жилищные условия, отвечающие как требованиям безопасного содержания SCP-объектов, так и базовым нормам комфорта и этичного обращения с разумными существами. Стандартные камеры содержания спроектированы таким образом, чтобы при минимальной доработке, или вовсе без таковой, подходить для содержания подавляющего большинства аномалий. После всестороннего изучения накопленного Организацией опыта, в их конструкцию были интегрированы общие решения, наиболее широко применяемые для противодействия аномальным эффектам самой разной природы, таким как:
повышенная опасность и деструктивный потенциал (особо высокая физическая сила, модификации тела встроенными средствами нападения, опасные излучения и выделения и т.п.)
агрессивное или враждебное поведение, как намеренное, так и нет (искаженное восприятие действительности, психические отклонения, недостаточный самоконтроль или подверженность стороннему контролю)
явная нелояльность, злостное неподчинение сотрудникам и несоблюдение требований режима содержания (рассматривается как дисциплинарная мера).
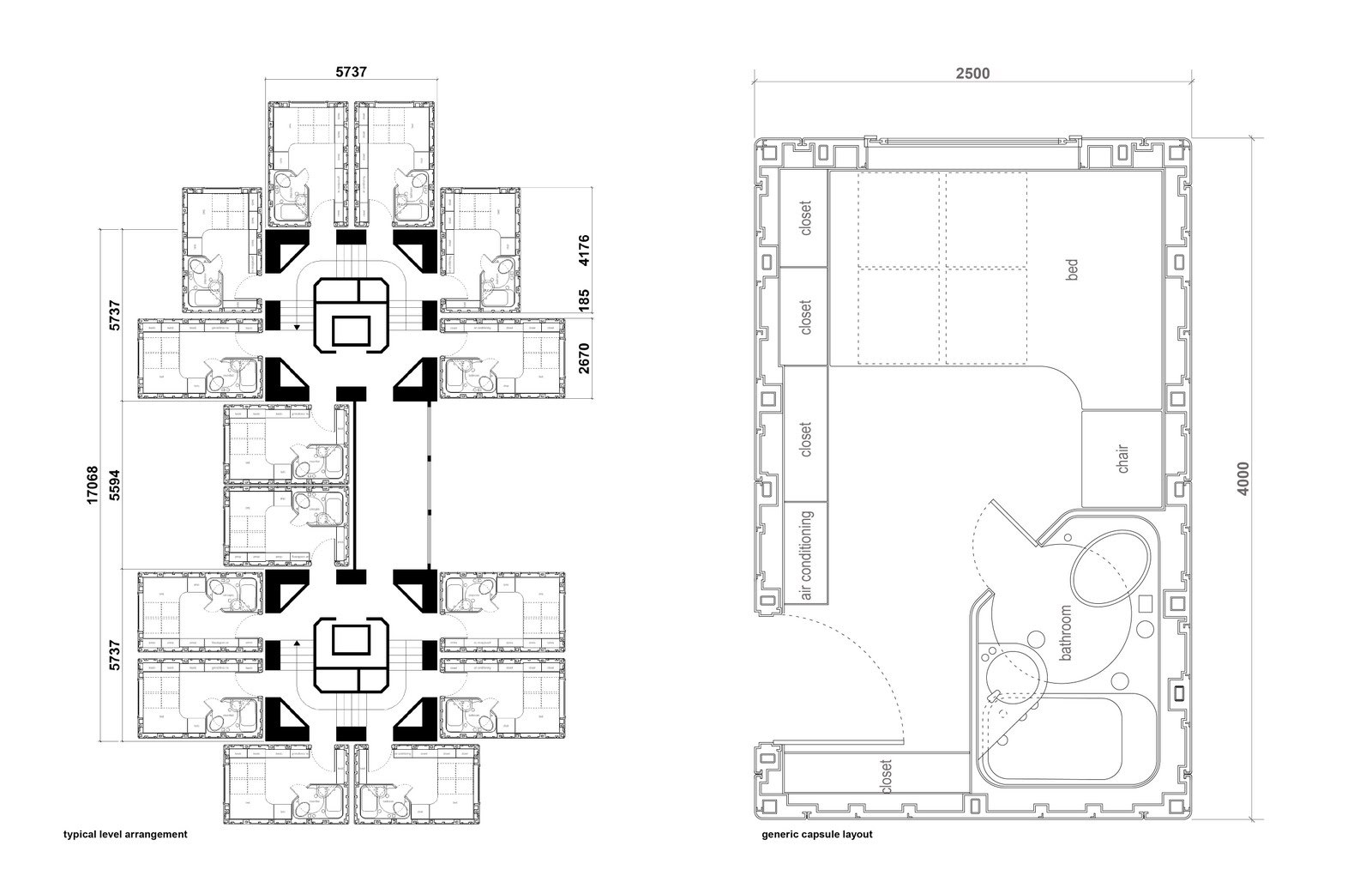
Камеры представляют собой блок-контейнеры, которые могут быстро демонтироваться, заменяться и транспортируются на новое место, позволяя создать необходимую инфраструктуру. Модули состоят из отдельных быстро заменяемых стенных, оконных и дверных элементов, благодаря этому можно заменить любой элемент, вышедший из строя. Подобная система сооружений используется для:
стройка зданий, корпусов и смежных комнат
замена разрушенных участков
возведения привычных на вид общежитий
модификация зон карантина и наблюдения под землей
содержание опасных объектов
///// ЗОНЫ СОДЕРЖАНИЯ
Делится на три типа:
▼ Легкая зона содержания: окружная территория, высокоэтажные здания (НЕ НАЗНАЧЕН, БЕЗОПАСНЫЙ)
▼ Смешанная зона содержания: может располагаться как над так и под землей (ТАУМИЭЛЬ)
▼ Тяжелая зона содержания: подземные помещения, заброшенные или же оцепленные участки (ЕКВЛИД, КЕТЕР)Для упрощения условий содержания по степени опасности и безопасности используется типы порядковых или ранговых шкал. Это шкала, классифицирующая по принципу «больше — меньше», «выше — ниже», «сильнее — слабее». Измерение в этой шкале предполагает приписывание объектам чисел в зависимости от степени выраженности измеряемого свойства, в данном случае «опасный — безопасный», позволяющие распределить аномалии по подземным и надземным этажам. Порядковая шкала отражает более высокий уровень измерений, учитывающий, к какой категории принадлежит объект и в каком отношении он находится с другими объектами. Научный отдел просят ранжировать (упорядочить) объекты, то есть расположить их в порядке возрастания (или убывания) интенсивности исследуемых характеристик и выраженной опасности. Разумеется, поскольку классификация не является констатацией факта, считается, что содержание объекта можно производить в соответствии с целями и задачами, соответствующими этим объектам.
///// УСЛОВИЯ СОДЕРЖАНИЯ
Могут меняться в зависимости от класса и уровня опасности объекта.
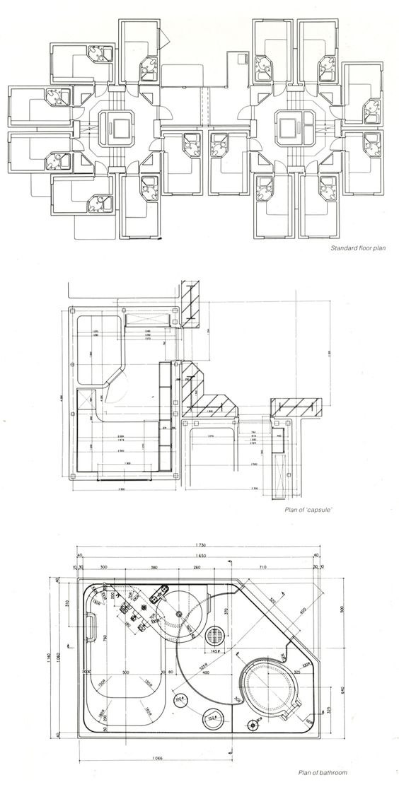
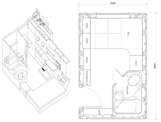
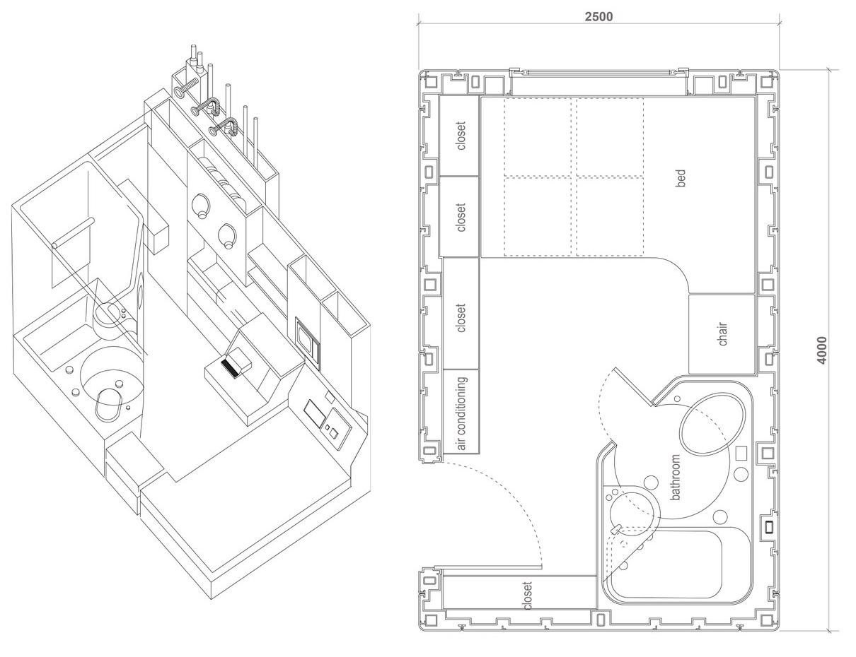
Размеры камеры: длина — 5 м, ширина — 3 м, высота — 3 м.
Стены, пол, потолок и окна изготовлены из железобетона, асбеста, закаленного стекла и оснащены креплениями для навесных защитных панелей (свинцовые — для радиоактивных объектов, мягкие материалы — для психически нестабильных гуманоидов, и т.д.).
Лампы освещения и видеокамеры (скрытые и не очень) закреплены на потолке и защищены бронестеклом.
Поскольку запись звука камерой через бронестекло будет затруднена, на потолке или потолочной панели размещены дополнительные компактные скрытые микрофоны. На стене у входа в камеру установлен интерком.
Камера оснащена спринклерной системой пожаротушения.
Вентиляция: выход венткороба, размером 15х15 см, размещён в потолке. Предусмотрена возможность перенаправления отводимого потока воздуха в фильтровентиляционную систему (на случай выделения газа, спор и т.п). Предусмотрена возможность подачи в камеру газообразных транквилизаторов.
Оборудование ванной комнаты: Совмещенный санузел, душевая кабина и стальная раковина с шаровым смесителем. Сливное отверстие перекрыто решёткой. Большое настенное зеркало из зеркального акрила ПММА, пластиковая полка для личных вещей. Предусмотрена возможность перенаправления стока в фильтрующую систему.(на случай опасных выделений).
Мебель. Кровать стальная "панцирная" с матрасом, привинченная к полу. Два стула и два стола — письменный и кофейный столик, изготовленные из АБС-пластика. Тумбочка и шкафчик для личных вещей. Стеллаж для книг. Телеэкран в стенной нише, закрытой бронестеклом, подключённый к DVD-плееру, аудиосистема.
Люк мусоропровода расположен в стене, мусоропровод ведёт непосредственно в шахту мусоросжигателя (может перекрываться решеткой для проверки выбрасываемого мусора)
Допускается окраска стен или оклейка обоями. Стены в ванной — только крашеные. Отделка пола в жилой комнате — линолеум. Пол в ванной выложен кафельной плиткой.
///// БЫТОВЫЕ АСПЕКТЫ
Подача воды, освещение, электроприборы (все или по отдельности) могут быть отключены с поста охраны.
Один раз в месяц объект проходит профилактический медицинский осмотр. Один раз в три месяца психолог Фонда должен проводить оценку состояния объекта.
Курение запрещено, курящим выдаются никотиновые пластыри.
Разрешено снабжение объекта книгами, дисками с фильмами и музыкой; список развлекательных материалов должен быть утвержден куратором объекта.
Комплект постельных принадлежностей заменяется раз в месяц. Выдаётся 4 полотенца на месяц. Набор гигиенических принадлежностей пополняется при уборке камеры.
///// ПРАВА И ОБЯЗАННОСТИ ОБЪЕКТА
Соблюдать комендантский час: с 22:00 — 06:00.
Беспрекословно подчиняться приказам персонала Фонда (за исключением обслуживающего персонала, однако попытки мешать их работе должны рассматриваться как нарушение условий содержания и пресекаться сотрудниками службы безопасности).
Использовать по назначению оборудование камеры.
Подать жалобу на неправомерные действия персонала Фонда; поступающие заявления должны быть отправлены в Комитет по этике.
Подать одну заявку в месяц на улучшение условий пребывания (обеспечение развлекательной продукцией, дополнительными гигиеническими принадлежностями, нестандартной одеждой и обувью).
Все заявки должны быть рассмотрены куратором объекта, который выносит решение об их выполнении или запрете их исполнения.
Комменданский час для классов
Не назначен
Могут перемешаться по комплексу и за ним вне зависимости от комендантского часа.
Безопасный
Имеет право свободного перемещения по блоку содержания в ночное время.
Евклид
Должны находится в камере содержания во время комендантского часа. Исключения — персонал на службе.
Кетер
Никогда не покидают камеры содержания. Исключения — перемещение в зону экспериментов.
Таумиэль
Имеет право свободного допуска и перемещения по зонам и камерам содержания.
///// ДИСЦИПЛИНАРНЫЕ ВЗЫСКАНИЯ
Попытки саботажа камеры считаются нарушением условий содержания и караются в соответствии с протоколом конкретного объекта.
Неподчинение приказам, нарушение правил поведения, повреждение имущества Фонда, агрессивные действия в отношении сотрудников Организации наказываются ужесточением условий содержания.
Перевод в камеру уровнем или на класс ниже.
Прекращение приема личных запросов.
Запрет развлекательной продукции.
Условия и камеры содержания
Сообщений 1 страница 5 из 5
Поделиться12022-01-25 17:23:55
Поделиться22022-01-25 18:43:07
Поделиться32022-01-25 20:20:54
Зоны содержания
Комплекс делится на два типа:
Легкая зона содержания (поверхность, высотки) БЕЗОПАСНЫЙ, НЕ НАЗНАЧЕН
Тяжелая зона содержания (подземка, заброшенные участки) ЕКВЛИД, КЕТЕР
Для упрощения условий содержания по степени опасности и безопасности используется типы порядковых или ранговых шкал. Это шкала, классифицирующая по принципу «больше — меньше», «выше — ниже», «сильнее — слабее». Измерение в этой шкале предполагает приписывание объектам чисел в зависимости от степени выраженности измеряемого свойства, в данном случае «опасный — безопасный», позволяющие распределить аномалии по подземным и надземным этажам. Порядковая шкала отражает более высокий уровень измерений, учитывающий, к какой категории принадлежит объект и в каком отношении он находится с другими объектами. Научный отдел просят ранжировать (упорядочить) объекты, то есть расположить их в порядке возрастания (или убывания) интенсивности исследуемых характеристик и выраженной опасности.
Типичный и очень хорошо известный всем пример порядковой шкалы — это школьные оценки: от 5 до 1 балла или от 0 до 10 баллов.
Задачей исследовательского комплекса в рамках эксперимента Зоны ОАЗИС и целью большинства объектов является продвижение по системе ранговых шкал, которые могут гарантировать уровень спокойной жизни, свободы передвижения и оказанного доверия как к сотруднику Фонда.
Поделиться42022-01-30 15:21:03
★ FAQ ПО ТЕМЕ
► Можно ли заходить в камеру/комнату к другой аномалии?
Содержание аномальных объектов/людей разделяется на блоки наземного и подземного назначения.
Общежитие делится примерно так:
Безопасный — верхние наземные этажи;
Таумиэль — первый и минус первый этажи;
Евклид — нижние подземные этажи.
Соответственно класс Безопасный и Евклид практически не пересекаются друг с другом на территории общежития без ведома класса Таумиэль — именно они отслеживают динамику отношений между этими двумя классами. Вы можете посещать зону содержания того или иного класса с получением уровня доступа 2, но это будет отслеживаться. Свободно передвигаться можно по блоку своего класса.
► Где содержится класс Кетер?
Под научным комплексом, не в стенах общежития. Их камеры содержания могут быть похожи на те же блок-контейнеры, однако это правило распространяется не для всех. Считайте Кетер это как динозавр — он опасен и требует особых условий содержания.► А класс Не назначен?
Для данного класса предоставляются дома вне стен купола, во въездном городе.► На сколько человек рассчитаны камеры общежития?
Камера попадает под критерии индивидуального проживания, она в большей степени подходит для содержания конкретного объекта/аномалии/способности. К примеру, если ваш персонаж страдает от перепад температур, как возгорание из-за повышенной теплоотдачи, ваша камера может быть прохладнее и более огнеупорной.► Меня могут запереть в собственной камере?
Изредка — да. Это могут быть как дисциплинарные высказывания или удержание вас в камере ради своего же блага. Некоторые способности объектов из-за экспериментов могут стать нестабильными, в таком случае их запирают на карантин в камере содержания, как в своей, так и под землей.► Доступ к артефактам у простых людей будет? Могу я что-то потрогать? Или это не интерактивный музей?
Теми или иными артефактами может пользоваться персонал с соответствующим уровнем допуска и разрешения руководства внутренних служб. Любое взаимодействие с артефактами фиксируется и контролируются, во избежание несчастных случаев. Однако данные случаи происходят постоянно... Ячейки содержания артефактов разбросаны по всем службам, однако больше всего их в производственной службе, где они и хранятся.
Поделиться52022-02-04 18:53:55
///// СТАНДАРТНЫЕ УСЛОВИЯ СОДЕРЖАНИЯ
Само собой разумеется, что все объекты и субъекты SCP имеют уникальные в какой-то степени требования по содержанию ввиду характера их аномалии, но это не значит, что какая-то часть условий их содержания не может считаться стандартной и подразумеваемой по умолчанию.
///// ОБЩАЯ БЕЗОПАСНОСТЬ УЧРЕЖДЕНИЙ
Можно смело предположить, что для любого учреждения Фонда, в котором содержится некоторое количество объектов или субъектов, существуют основные протоколы для общей безопасности и безопасности самого объекта.
В таких учреждениях заведомо приняты основные меры, направленные на защиту гражданских лиц от эффекта объектов, предотвращения случайного доступа гражданских же лиц в закрытые зоны, обеспечения безопасности персонала учреждения и возможности продолжения функционирования в случае нарушения условий содержания.
Можно предположить, что приведённое ниже является неотъемлемой частью стандартных условий содержания в учреждениях Фонда и потому не должно подробно описываться в ОУС:
Охрана — стандартное учреждение Фонда уж наверняка оснащено службой безопасности, вооружения и количества сотрудников которой достаточно для круглосуточной охраны и/или оперативного подавления некритичных нарушений условий содержания местных объектов. В таких учреждениях предусмотрены несколько пунктов охраны (как минимум у каждого входа в учреждение) и ограничение доступа в исследовательские секторы и секторы содержания. Учреждение крупного размера может иметь десятки таких пунктов и, возможно, сотни сотрудников службы безопасности.
Запирающие системы — современное учреждение Фонда уж наверняка оснащено средствами для исключения случайного или намеренного несанкционированного доступа сотрудников в те помещения, находиться в которых они не имеют права, равно как и для исключения возможности побега содержащихся объектов. В таких учреждениях имеются и ключ-карты, и биометрические системы сканирования (например, отпечатков пальцев или сетчатки глаза), и обычные замки, отпирающиеся с помощью кода или ключа. Учреждения, в которых содержатся опасные объекты или субъекты, могут быть оснащены вспомогательными системами, такими как тяжёлые переборочные двери, позволяющие произвести герметизацию секции учреждения в случае серьёзного нарушения.
Наблюдение — все учреждения Фонда имеют автоматизированные системы безопасности, такие как камеры наблюдения с микрофонами, и в достаточном количестве, чтобы держать под контролем все входы, выходы, внутренние коридоры, исследовательские лаборатории и камеры содержания. Учреждения Фонда с более строгими требованиями к безопасности также могут быть оснащены более сложными устройствами, такими как датчики давления, движения или объёма, лазерные системы сигнализации и более экзотические устройства.
Уровень доступа — в Фонде имеется система, позволяющая или не позволяющая сотрудникам доступ к содержащимся объектам или субъектам.
///// СТАНДАРТНЫЕ ЯЧЕЙКИ ХРАНЕНИЯ АРТЕФАКТОВ
Для значительного числа неодушевлённых и неавтономных SCP-объектов правдоподобные условия содержания заключаются не более чем в "запереть в ящике и не тормошить". В случае с такими объектами, будет замечательно просто заявить, что они хранятся в "стандартной ячейке хранения".
Если хотите представить себе то, как это выглядит — представляйте помещение, полное закрытых сейфов размером со шкафчики в школьной раздевалке, каждый из которых содержит один и только один аномальный предмет. Система видеонаблюдения в помещениях со стандартными ячейками, как правило, требуется минимальная: один комплект камер может легко охватить всю комнату без необходимости ставить ещё по камере на каждый сейф, а один пост охраны может правдоподобно ограничить доступ к всему складу, без необходимости ставить под каждый сейф по человеку.
///// СТАНДАРТНЫЕ КАМЕРЫ СОДЕРЖАНИЯ ОБЪЕКТОВ
Гуманоидные SCP-объекты по своей природе автономны, непредсказуемы и зачастую требуют специфических условий содержания, но всё это ещё не значит, что не существует набора основных требований, общих для всех людей или гуманоидов.
Приведённое ниже можно смело считать стандартом для содержания объектов:
Воздух — Если данный субъект не приловчился жить без кислорода, то его камера, скорее всего, подключена к центральной системе отопления, вентиляции и кондиционирования воздуха. Если субъект способен загрязнить такую централизованную систему, то он будет помещён в автономную камеру, и это будет упомянуто в Особых условиях содержания.
Вода и санитария — Если субъект нуждается в том, чтобы пить воду, мочиться и выделять отходы, то в его камере должны быть умывальник, туалет и душ. Опять же, если субъект может загрязнить такие системы, его камера будет автономной.
Питание — Если субъект может довольствоваться нормальным для человека рационом, то можно поставлять ему еду из столовой Фонда, подавая её через окошко в двери камеры, наподобие таковых тюрьме (для безопасности персонала СБ). Если субъекту требуется специальная диета или если его кормление должно осуществляться с помощью автоматизированных систем (например, потому, что присутствие сотрудников службы безопасности вызывает проявление каких-либо эффектов или представляет опасность для персонала), то это должно быть упомянуто.
Наблюдение — Камеры видеонаблюдения и микрофоны в камере содержания гуманоида, как правило, стандартные и подключены к центральному пункту охраны, откуда осуществляется постоянное наблюдения (и видеозапись), если таковое наблюдение не несёт риска для персонала (подобное может быть, например, если субъект является опасным для слухового и/или зрительного восприятия).
Охрана — Учреждение, предназначенное для содержания гуманоидов, уж наверняка оснащено специальным охранным персоналом, подобно тюрьме строгого режима (и, скорее всего, даже сверх того).
Медицина и психиатрия — Учреждения для содержания гуманоидов имеют полный штат медиков и психиатров Фонда, оберегающий как содержащихся гуманоидных существ, так и персонал учреждения. Эти сотрудники подготовлены для наблюдения и выявления изменений в поведении содержащихся субъектов и обслуживающего их персонала, а также для консультирования разумных гуманоидных существ и смягчения психологических последствий длительных сроков лишения





































 
